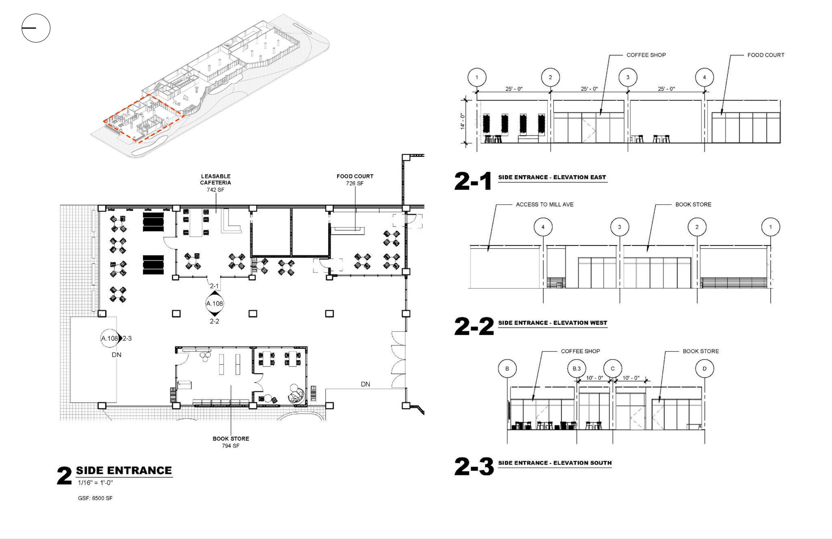
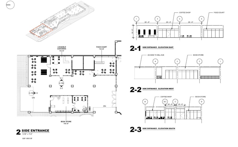
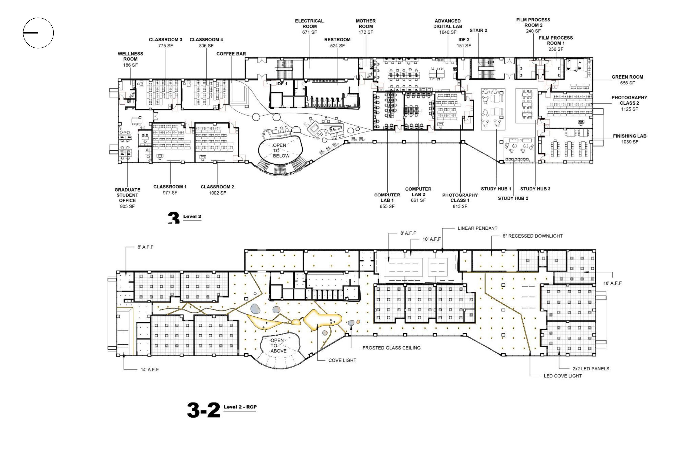
University Gateway Building
Advanced Interior Architecture Studio
Location Mill Ave, TEMPE, AZ
area 80000 ft²
year 2024
Softwares Revit, TWINMOTION, adobe suite
SPECIAL THANKS TO Chad Billing and Becky Tomasek


The ASU Gateway stands at the South Edge of downtown Tempe, extending the city's main spin with its dynamic presence. Strategically positioned, it forms transition, seamlessly inviting visitors and local intentions.
While on its north side, Omni hotel and Mirabella living building provide comfort and convenience, while the south side boasts a museum and art theater, enriching cultural experiences. Facing residential areas to the west, it fosters a sense of belonging among residents, while to the east, it embraces the student campus, fostering a dynamic blend of cultures, generations, and art.
In essence, the ASU Gateway serves as a nexus of diversity, where people from all walks of life come together, sparking meaningful exchanges and collaborations, and enriching the fabric of the community.




















































